한쪽 벽면을 가득 채운 공구와 먼지가 살짝 내려앉은 작업대, 기름기 가득한 장갑에 멜빵 바지를 입고 자동차 바닥에서 직접 수리를 하고 있는 남자.
미드나 미국 영화에서 흔히 볼 수 있는 남자들의 모습이죠.


어려서부터 뭔가 만들기를 좋아했던 저는 그런 모습들을 보면서 나도 크면 꼭 저렇게 직접 차도 고치고 뭐든 만들고 할 수 있는 나만의 작업실이 있었으면 하는 로망을 갖고 있었습니다.
하지만 어른이되어 결혼을 하고 보니 집은 나의 것이 아니었고 내가 살게된 아파트에는 그런 작업실 따위는 존재하지 않더군요.
처음에는 15평 정도의 작은 주택한켠, 25평 아파트, 32평 아파트로 점차 집의 크기를 늘려왔지만 그사이 아이가 하나, 둘 늘어나면서 제가 생각했던 저만의 공간은 결국 얻지 못하였습니다.
물론 베란다 한쪽에서 뚝딱 뚝딱 뭔가를 만들기는 했지만 위에서 말했던 그런 작업실은 아니었죠.
이번 이사전에는 드래스룸, 파우더 룸을 이용하여 제 작업실을 꾸민적이 있습니다. 오롯이 저만을 위한 그런 공간이죠. 집안에 그런 공간이 있다는걸 와이프는 탐탁치 않아 했지만 집안 여기저기에 흔적을 남기는 것보다는 나았으니 그러려니 했었나 봅니다.
그런데 이번 이사를 하게 된 집은 드래스 룸이 없는 집이었고 파우더 룸은 안된다고 하더군요....
그래서 와이프에게 비장한 얼굴로 제안을 했습니다.
'이보시오 마누라, 뒷 베란다 한켠만 나에게 나누어 주시오.'
그럼 집안 다른 곳에 지저분한 내 공구와 물건들 두지 않겠다고...
잠시 고민하던 와이프님께서 결국 승인을 해주었습니다. ㅋ
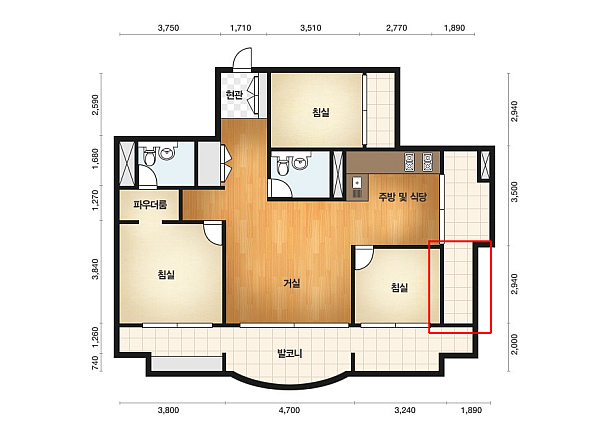
이번 이사한 집 구조는 아래와 같이 생겼습니다.

그리고 저에게 주어진 공간은 위 그림에서 빨간 네모 부분 입니다.
흠...
불행히도 전에 살던 분이 집을 너무 관리를 하지 않았기 때문에 벽면이 온통 곰팡이 천지 였습니다. OTL

곰팡이 제거제를 뿌리고 닦고 뿌리고 또 닦기를 반복했습니다. ㅜㅜ
2020/03/11 - [청소장인] - 곰팡이와의 전쟁 아파트 베란다 곰팡이 제거하기
곰팡이와의 전쟁 아파트 베란다 곰팡이 제거하기
이사를 하며 집을 떠날때도 들어올때도 항상 눈에 밟히는 게 있다면 바로 곰팡이가 아닐까 싶습니다. 떠나는 입장에서는 들어올 사람에게 드는 미안한 마음이겠고 들어갈 입장에서는 내가 살아갈 공간에 곰팡이가..
diy-dev-design.tistory.com
걸레를 30번쯤 빨았을때 쯤 벽은 하얗게 보이기 시작했고
결국 다시 태어난 제 작업실은 이런 모습입니다.
따라다랏 따~~~

뭔가 .... 있을 듯한~
하얀색 장너머로 바로~
쨔쟌~~

곰팡이 가득했던 벽도 하얗게 변했고
쓸모가 별로 없는 뒷베란다 공간이 저만의 작업실로 변했습니다.
제 작업대 전면 사진을 볼까요?

책상은 더이상 사용하지 않는 1200mm 짜리 철제 책상에 이케아 LACK 테이블 상판을 가로로 두개 붙여서 벽면에 나무판을 세웠고요. 옆에 있는 흰색 긴 장과 책상 상판에 각각 L 자 브라켓으로 고정을 하였습니다. 이케아 LACK 테이블은 저렴하고 쓸모가 많은 제품으로 유명하죠.
다이소에서 판매하는 철망을 몇개 붙인 뒤 나사로 고정하고 역시 다이소에서 판매하는 걸이를 걸어 다양한 물건들을 걸 수 있게 하였습니다.
자주 사용하는 공구는 저렇게 눈앞에 걸어 놓는 것이 편리하죠. 와이어 스트리퍼, 작은 니퍼, 롱노우즈는 필수품입니다.
좌측에는 납땜용 인두와 우측에는 전동드릴, 어제 저녁 마신 맥주 캔도 보이는군요. ㅎㅎ
전면에 작은 책꽂이를 눕혀 놓고 자주사용하는 RC 카용 부품과 납땜용 재료들, 각종 배터리들 보관하도록 하였습니다.
LACK 테이블 상판이 두께감이 있기 때문에 위에도 물건을 올릴수 있는데요,
좌측부터 18650 충전기, 메인 전원소스가 되어줄 콘센트 (전력량 측정기 포함), IMAX 만능 충전기와 RC 카용 LI-PO 배터리들이 자리잡고 있습니다.
안쓰는 컴퓨터에서 떼어낸 파워서플라이는 제 작업 환경에 양질의 12V 5V 전원을 공급해 주게 됩니다.
브래드 보드도 항상 책상위에 위치하고 있어 언제든 부품들을 꽂아 필요한 실험을 할 수 있습니다.
작업대에 앉았을 때 좌측으로 베란다 에 기본으로 설치되어 있는 선반이 있는데요. 이곳에 각종 부품들과 자외선 차단이 필요한 다양한 본드류, 기름 종류 들이 자리하고 있습니다.

힉~ 파란색 악마의 헤일로 전담 액상도 보이네요. 네 그렇습니다. 이곳에서는 전담도 가능합니다. 작업하며 담배한모금은 정말 꿀이죠. 저의 경우엔 무향 액상을 사용하기 때문에 냄새 걱정도 없습니다. (헤일로병은 그냥 장식이죠. 멋있자나요)
그리고 부품 박스들과 무선 진공청소기 차이슨 까지.
박스마다 저에게 소중한 DIY 재료 들이 가득합니다. 재활용 폐기물 처리장에서 적출된 각종 모터와 팬, 전원 소스와 아날로그 부품들이 분해되어 각자의 방으로 나뉘어 분배 되어 있지요.
책상에 앉아서 우측에는 역시 다양한 재료들과 수납 공간이 자리하고 있습니다.

아직 완전히 정리가 되지는 않았지만 곧 정리가 마무리 되면 좀더 물건들이 진열되어 있게 될 것 같습니다.
ㅋㅋ 사진에 솔져 인형이 제가 만든 심플드레멜을 가지고 놀고 있네요

밤이 되면 아래와 같이 환한 작업실의 모습을 볼수 있습니다.

등뒤로는 북한산이 우람한 자태를 뽐내고 있습니다.

자 어떠신가요?
저도 언젠가는 마당있는 집에 창고를 두고 창고에 저만의 작업실을 갖는게 꿈입니다만 그때까지 마냥 기다리기에는 우리 인생이 짧지 않습니까? 집안 한켠에 저만큼은 아니더라도, 아니 저보다 훌륭하게 작업실을 한번 꾸며 보시는 것은 어떨까요?
크지 않더라도 오롯이 자신만을 위한 공간이 있다는 것.
그게 바로 남자의 로망 아니겠습니까?
오늘밤도 열정을 다해 작업에 몰두해 보겠습니다!

'DIY' 카테고리의 다른 글
| 욕실장(싱크대) 경첩 셀프 교체하기 #노하우, #주부도 가능 (0) | 2020.03.16 |
|---|---|
| [수리기] 닌텐도 Wii 리모컨 고장 수리. #간단 #초보 가능 (4) | 2020.03.10 |
| [놀이감] BB탄 사격놀이 용 과녁판 만들기 (1) | 2020.03.03 |
| [재활용] 버려진 외장배터리에서 18650 적출하기, 부활시키기 (5) | 2020.03.03 |
| [repair] 3D pen 으로 빨래 바구니 손잡이 수리하기 (0) | 2019.11.08 |